Dům definovaný horizontálními plochami – plocha jezera, plocha obytná a plocha zastřešení. Dispozice volně plyne těmito rovinami, zasklení jen technicky odděluje vnitřní a vnější prostor.
návrh stavby
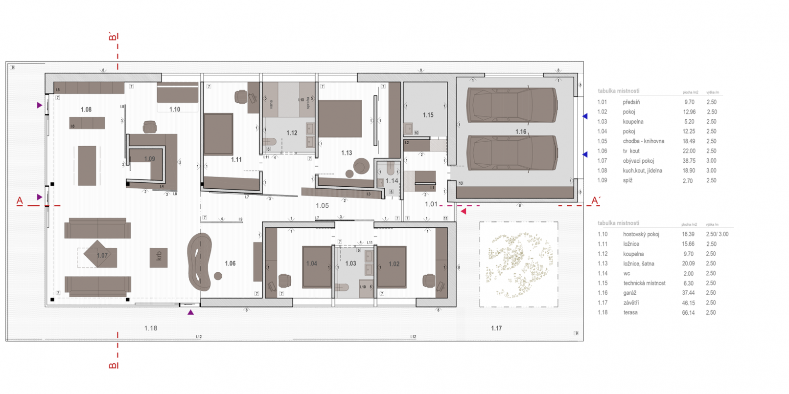
Obec pyšní se kaskádou tří rybníků, původně obklopených malebnou přírodou. U břehu prostředního rybníku se nachází řešená stavební parcela určená pro návrh domu pro čtyřčlennou rodinu. Horizontální jednopodlažní hmota objektu je v severní části mírně vykonzolovaná nad svažující se břeh a poskytuje jedinečný výhled na rybník přímo z hlavního obytného prostoru. Ten je proti přílišnému oslunění ze západní strany chráněn předsazenou konstrukcí střechy, která plyne podél celé hmoty směrem k jihu, stíní místnosti dvou dětských pokojů a na jižním konci přechází v atrium doplněné vzrostlým stromem a zároveň zajišťující zastřešený vstup do domu.









